44200 Nantes
Appartement T3 - 60 m² - Bonne Garde
Appartement T3 - 60 m² - Bonne Garde
Appartement T3 - 60 m² - Bonne Garde
À Nantes, à proximité immédiate de l’arrêt Busway « Bonne Garde », découvrez ce magnifique appartement T3 d’une surface au sol totale de 61,5 m², situé au 1er étage d’une copropriété bien entretenue et disposant d’un bel espace de jardin commun.
Description du bien
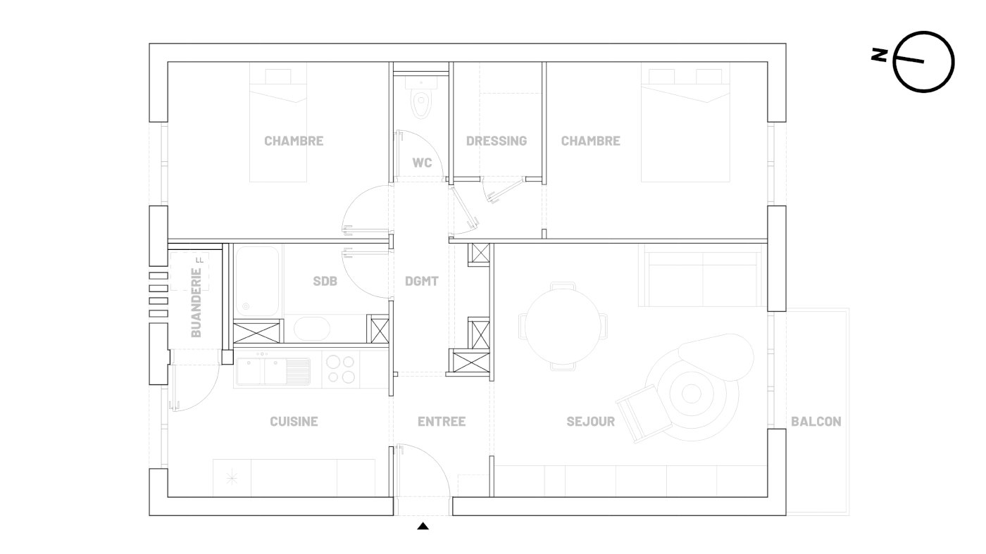
L’appartement, traversant et orienté SUD / NORD, offre une belle luminosité tout au long de la journée et une distribution fonctionnelle des espaces. L’état général du bien est très satisfaisant, il n’y a pas de travaux à prévoir ! C’est un logement idéal pour un couple avec un enfant !
Il dispose de :
• Une entrée de 2,90 m²
• Un séjour lumineux de 17,50 m²
• Une cuisine indépendante de 7,90 m²
• Une salle de bains de 3,50 m²
• Un WC séparé de 1,30 m²
• Un couloir de 3,40 m²
• Une chambre principale de 13,80 m² (compris dressing de 2,80 m²)
• Une seconde chambre de 9,80 m²
• Une buanderie de 1,50 m² (hors loi Carrez, isolée mais non chauffée)
Annexes
• Un balcon
• Un garage box fermé
• Une cave
Copropriété
Le bien fait partie d’une copropriété comprenant 238 lots dont 60 lots d’habitation.
• Charges de copropriété : 150 € /mois (chauffage collectif avec comptage individuel, eau froide, entretien des parties communes)
• Aucune procédure en cours
Localisation
Emplacement recherché, proche des transports (Busway Ligne 4, arrêt Bonne Garde), commerces, écoles et commodités. Accès rapide au centre-ville de Nantes.
Informations complémentaires
• Type de chauffage : Collectif avec comptage individuel / radiateur / gaz de ville
• Production d’eau chaude : Individuelle / ballon électrique
• DPE : D (consommation 229 kwH/m²/an)
• GES : D
• Taxe foncière : 1244,00 € (valeur 2025)
• Année de construction : 1972
Vente directe de particulier à particulier - Sans frais d’agence.
À Nantes, à proximité immédiate de l’arrêt Busway « Bonne Garde », découvrez ce magnifique appartement T3 d’une surface au sol totale de 61,5 m², situé au 1er étage d’une copropriété bien entretenue et disposant d’un bel espace de jardin commun.
Description du bien
L’appartement, traversant et orienté SUD / NORD, offre une belle luminosité tout au long de la journée et une distribution fonctionnelle des espaces. L’état général du bien est très satisfaisant, il n’y a pas de travaux à prévoir ! C’est un logement idéal pour un couple avec un enfant !
Il dispose de :
• Une entrée de 2,90 m²
• Un séjour lumineux de 17,50 m²
• Une cuisine indépendante de 7,90 m²
• Une salle de bains de 3,50 m²
• Un WC séparé de 1,30 m²
• Un couloir de 3,40 m²
• Une chambre principale de 13,80 m² (compris dressing de 2,80 m²)
• Une seconde chambre de 9,80 m²
• Une buanderie de 1,50 m² (hors loi Carrez, isolée mais non chauffée)
Annexes
• Un balcon
• Un garage box fermé
• Une cave
Copropriété
Le bien fait partie d’une copropriété comprenant 238 lots dont 60 lots d’habitation.
• Charges de copropriété : 150 € /mois (chauffage collectif avec comptage individuel, eau froide, entretien des parties communes)
• Aucune procédure en cours
Localisation
Emplacement recherché, proche des transports (Busway Ligne 4, arrêt Bonne Garde), commerces, écoles et commodités. Accès rapide au centre-ville de Nantes.
Informations complémentaires
• Type de chauffage : Collectif avec comptage individuel / radiateur / gaz de ville
• Production d’eau chaude : Individuelle / ballon électrique
• DPE : D (consommation 229 kwH/m²/an)
• GES : D
• Taxe foncière : 1244,00 € (valeur 2025)
• Année de construction : 1972
Vente directe de particulier à particulier - Sans frais d’agence.
192 000 €
60 m²
Code Postal
44200
Ville
Nantes
Type de bien
Appartement
GES
D
Classe énergie
D
Mise en ligne
19 mars 2026
Nombre de vues
537